Close
Natalie Sydoruk
Real Estate
Real Estate

Dear friends and customers!
-
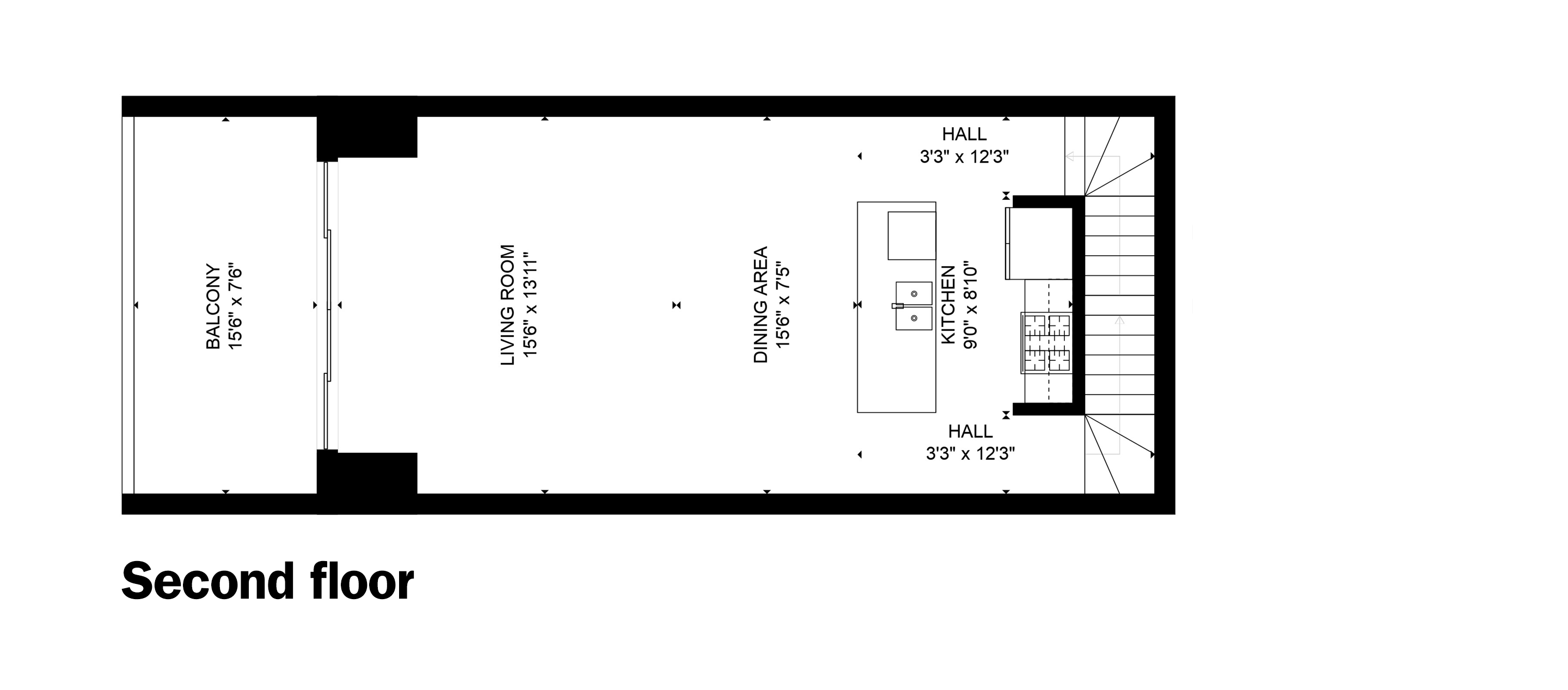
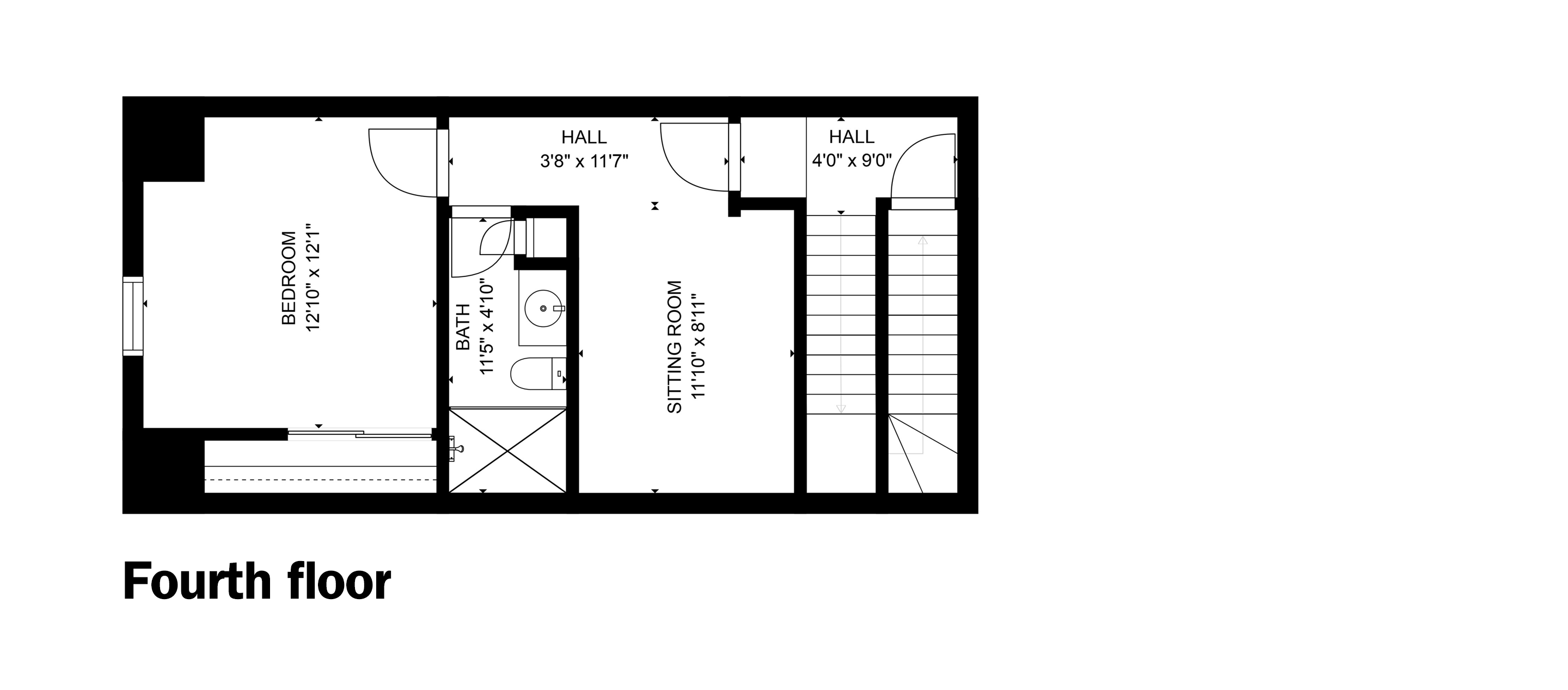
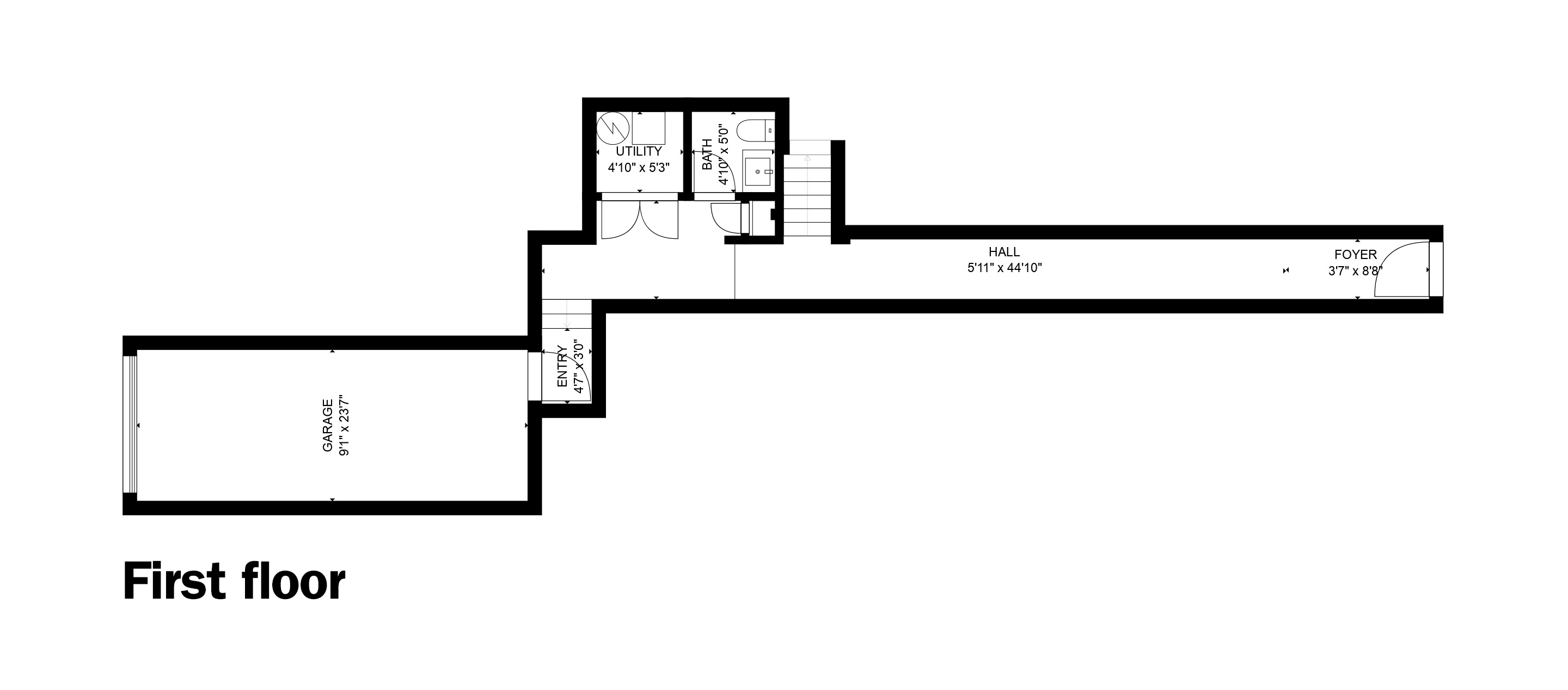
Price: $1,507,000
-
Type: Condo townhouse
-
Size: 2,070 sq.ft.
-
2+1 Bedroom/3 Bathroom
- Parking: 1 car garage
- Maintenance: $435/m
Close
Natalie Sydoruk
Real Estate
Real Estate

Dear friends and customers!
Video walk-through
Click the video to watch
Best conveniences
are just around the corner.
are just around the corner.
The area is known for its excellent shopping, restaurants and bars. The tastiest coffee and pizza in town are only a few blocks away from 182 Lansdowne Avenue.
-
1Food Basics
-
2The Beer Store
-
3Cafe Con Leche
-
4Mattachioni
-
5Wallace Espresso
-
6LCBO in The Junction
-
7SHOXS Billiard
-
8Indie Ale House
-
9Playa Cabana Catina
-
10Pizzeria Libretto
-
11Organic Garage
-
12Home Depot
-
13RONA
-
14Canadian Tire
-
15Nations
-
16Dollarama
-
17Winners
-
18Ali's Bresh Baked
-
19Tavora Food
-
20King's Delight
-
21Wallace Espresso
-
22Neon Cafe
-
23Balzac's Cafe
-
24Sugo
-
25Mac's Pizza
-
26Seol's Shakers
Getting to 182 Lansdowne
is fast and easy.
is fast and easy.
Davenport TTC bus stop is less than a minute away. A 8-minute walk will get you to the UP Express on Bloor Street or Subway Lansdowne Station.

-
1TTC Bus 26
-
2TTC Buses 47ABC
-
3TTC Buses 16B
-
4TTC Buses 40AB, 312
-
5Subway: Dundas West
-
6UP & GO Stations
-
7Subway: Lansdowne
-
8TTC Bus 127
-
9TTC Bus 29, 29BD
-
10TTC Streetcar 512
-
Toronto Rail Path
The future is bright.
The neighbourhood is soon to be home to several exciting new projects, including the Davenport Diamond Greenspace and numerous condo developments.
-
1Under construction
-
1Recently completed
-
1Junction Point
-
2Junction House
-
3Scout Condos
-
41821 Davenport
-
5Galleria condo
-
65376 Dundas W.
-
7East Junction
-
ADUKE Condos
-
BFuse I & II condos
-
CWallace Walk Towns
-
DArch Lofts
-
Davenport Diamond
Guideway
Best conveniences
are around the corner.
are around the corner.
The area is known for its excellent shopping, restaurants and bars. The tastiest coffee and pizza in town are only few blocks.

-
1Food Basics
-
2The Beer Store
-
3Cafe Con Leche
-
4Mattachioni
-
5Wallace Espresso
-
6LCBO
-
7SHOXS Billiard
-
8Indie Ale House
-
9Playa Cabana Catina
-
10Pizzeria Libretto
-
11Organic Garage
-
12Home Depot
-
13RONA
-
14Canadian Tire
-
15Nations
-
16Dollarama
-
17Winners
-
18Ali's Bresh Baked
-
19Tavora Food
-
20King's Delight
-
21Wallace Espresso
-
22Neon Cafe
-
23Balzac's Cafe
-
24Sugo
-
25Mac's Pizza
-
26Seol's Shakers
Getting to 146 Osler is fast and easy.
Davenport TTC bus stop is 5 minutes away from the property. An 18-minute walk will get you to the UP Express on Bloor Street and Dundas West Subway Station.
-
1Buses 127 & 128
-
2Bus 26
-
3Buses 40 & 312
-
4Buses 41, 89, 189
-
5Subway: Dundas West
-
6UP & GO Stations
-
7Subway: Lansdowne
-
8Bus 47
-
9Streetcar 512
-
10Bus 312
-
11Eglinton Cross Town
-
Toronto Rail Path
-
The unit details
-
Parking and locker
-
Transit and highway access
Sign-up for our newsletter and receive updates on the most exciting properties in town straight to your mailbox.
Please provide your name and email address if you wish to receive more information.

